NEW

濱本貸家

6万円

管理 / 共益費 -

広島県広島市安佐南区祇園7丁目5-13

可部線「古市橋」駅徒歩8分

賃料
6万円
敷金(保証金)
2ヶ月(-)
間取り
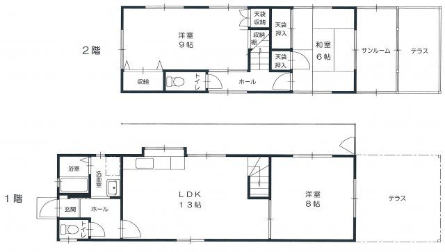
3LDK
向き
南西
所在地
広島県広島市安佐南区祇園7丁目5-13
管理 / 共益費
-
礼金
1ヶ月
建物面積
82.00㎡
築年月
1973年10月(築52年)
交通

可部線古市橋」駅 徒歩8分

物件の特徴

  • バストイレ別

  • TVモニタ付きインターホン

セールスポイント

ぜひ一度見ていただきたい、「濱本貸家」です◎TVインターフォンを設置し、セキュリティに配慮した物件です◎一戸建て物件なので、ファミリーでのお住まいにおすすめです◎こちらの住宅の向きは南西向きです◎お探しの方はどうぞ◎コートなども扱いやすいクロゼットが設置されています◎住環境が整った広島市安佐南区で新生活を始める方は、ぜひさくらホームに住まい探しをお任せください◎

基本情報

保証金
-
敷引 / 償却
- / -
敷金積み増し
-
間取り / 詳細
3LDK
和室 6.0帖/洋室 8.0帖/洋室 9.0帖/LDK 13.0帖
向き
南西
建物面積
82.00㎡
バルコニー
(テラス)面積
-
階建て
2階建
建物構造
木造
築年月
1973年10月(築52年)
種別
一戸建て
保険会社 / 料金
有  20,000円  / 2年
保証会社 / 料金
必加入 / 全保連
初回のみプラン 初回保証委託料賃料総額の120%
又は更新タイプ初回50%(更新13,000円/年)
駐車場
有 7,000円
現況
空家
入居可能時期
2027年02月中旬

設備条件

設備条件
  • プロパンガス / 公営水道 / 公共下水 / バス・トイレ別 / TVモニタ付インターホン
リフォーム
    2020.12
    LDK

その他

契約期間
2年
賃貸区分
一般
更新料
-
更新事務手数料
-
総戸数
-
特優賃
-
取引態様
専任媒介
物件番号
59639101
管理コード
-
情報更新日
2026年02月17日
次回更新予定日
2026年03月03日
取扱会社
  • さくらホーム株式会社
  • 広島県広島市安佐南区祇園6丁目10番15号 
  • TEL:082-871-9008
  • 広島県知事 (3) 第10079号
    賃貸住宅管理業 国土交通大臣(1)第5157号
    建設業 広島県知事 許可(般-30)第36754号
  • 社団法人全日本不動産協会
    公益社団法人不動産保証協会
    社団法人西日本不動産流通機構
備考
近隣駐車100m 徒歩2分 空き有7.000円/月

周辺施設

  • セブンイレブン 広島祇園8丁目店の画像

    コンビニエンスストア

    セブンイレブン 広島祇園8丁目店

    142m(2分)

  • Spark(スパーク) 大町店の画像

    スーパー

    Spark(スパーク) 大町店

    498m(7分)

  • 古市橋の画像

    古市橋

    507m(7分)

  • ドラッグセガミ大町店の画像

    ドラッグストア

    ドラッグセガミ大町店

    567m(8分)

  • イオンモール広島祇園の画像

    ショッピングセンター

    イオンモール広島祇園

    770m(10分)

  • もみじ銀行古市支店の画像

    銀行

    もみじ銀行古市支店

    805m(11分)

  • ドン・キホーテ 広島祇園店の画像

    スーパー

    ドン・キホーテ 広島祇園店

    995m(13分)

  • 広島経済大学の画像

    大学

    広島経済大学

    1042m(14分)

  • 祇園小学校の画像

    小学校

    祇園小学校

    1062m(14分)

  • 安佐南郵便局の画像

    郵便局

    安佐南郵便局

    1349m(17分)

近隣の物件

  1. メゾンソレイユB棟

    広島市安佐南区祇園6丁目

    1K (27.00㎡)

    4.7万円

  2. VILLA MONZEN Ⅱ

    広島市安佐南区祇園8丁目

    2LDK (65.00㎡)

    8.5万円

  3. VILLA MONZEN

    広島市安佐南区祇園8丁目

    2SLDK (65.00㎡)

    8.7万円

  4. コーポエイティA棟

    広島市安佐南区祇園7丁目

    1K (27.00㎡)

    4.6万円

よく見られている物件

  1. 真藤ビル

    広島市安佐南区祇園1丁目

    2DK+S(納戸) (50.00㎡)

    5.8万円

  2. 西本ビル

    広島市安佐南区東野1丁目

    2LDK (57.34㎡)

    6.2万円

  3. 島本マンション

    広島市安佐南区長束4丁目

    2DK (38.00㎡)

    5万円

  4. ベル・ビュー松井B棟

    広島市安佐南区祇園5丁目

    1K (29.00㎡)

    3.9万円

濱本貸家

濱本貸家

6万円

-

3LDK(82.00㎡)

お気軽にお問い合わせください

無料お問い合わせ

さくらホーム株式会社

082-871-9008

09:00~18:00

(休:日曜日、年末年始・GW・お盆)